Ferienanlage Bi Village Lodge Comfort

Preiskategorie:
bis 6 Personen
32,00 m²

Objektbeschreibung

Sie erhalten 5 % Sofortzahlungs-Rabatt, wenn Sie direkt nach der Buchung vollständig bezahlen und auf die kostenfreie Stornierung verzichten. Bitte schreiben Sie dazu „Buchung100“ ins Kommentarfeld. Wir ziehen die 5 % anschließend für Sie ab. Falls dieser Tarif im Buchungsportal bereits ausgewählt wurde, ist kein zusätzlicher Rabatt möglich. Wichtig: Bei diesem Tarif sind 100 % des Betrags sofort nach der Buchung fällig. Dieser Rabatt kann bis zu 60 Tage vor Anreise gebucht werden.

Die familienfreundliche Unterkunft befindet sich in der schönen 4-Ferienanlage Bi Village in Fazana (Istrien). Das Feriendorf grenzt direkt ans Meer und ist damit ideal für Familien. Die Ferienanlage verfügt neben einem tollen, grossen Kinderpool und einem Spraypark auch über Swimmingpools für Schwimmer. Ein Miniclub/Animation für Kinder sowie ein Unterhaltungsprogramm für Erwachsene sorgen, nebst einem tollen Spielplatz, grosser Sportvielfalt, sowie Restaurants, Supermarkt, Zeitungsstand und Bazar, für einen unvergesslichen Urlaub. Der gut ausgestattete Strand lädt zum Entspannen ein. Weiter stehen den Feriengästen Münzwaschmaschinen und Trockner zur Verfügung. In Fussnähe erreichen Sie gemütlich über den Fussweg entlang des Meeres das Zentrum von Fazana. Wenige Autominuten von der Ferienanlage entfernt befindet sich Pula, mit dem Wahrzeichen und Hauptsehenswürdigkeit, dem Amphitheater.

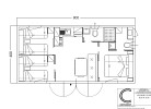
Die Lodge Comfort bietet Platz für max. 6 Personen (inkl. Babys). Die moderne und schöne Unterkunft verfügt über ein Schlafzimmer, welches mit einem Doppelbett und direktem Zugang zum separaten WC ausgestattet ist. Die beiden Kinderzimmer verfügen jeweils über zwei Einzelbetten. Die gut eingerichtete Küchenzeile im kombinierten Wohn- und Essbereich verfügt über einen Gasherd, Geschirr, Besteck, Töpfe, eine typisch italienische Espressokanne, eine Mikrowelle sowie über einen Kühlschrank mit Eisfach. Das Badezimmer ist mit einem Waschbecken, einem WC und einer Dusche ausgestattet. Der grosszügige und überdachte Sitzplatz ist mit einem Tisch und Stühlen ausgestattet – der ideale Ort also um einen erlebnisreichen Badetag gemeinsam mit seinen Liebsten ausklingen zu lassen. Das Grillen bei der Unterkunft ist ebenfalls erlaubt, so dass einem gemeinsamen Grillabend nichts mehr im Wege steht (ein Gas- oder Elektrogrill ist selbst mitzubringen). SAT-TV ist vorhanden. Fahrzeit ab kroatischer Grenze ca. 1h. Hinweis: Wenn Sie mehr als eine Unterkunft benötigen, ist dies bei uns in der Regel möglich, da wir über mehrere Objekte des gleichen Haustyps verfügen.

ANREISETAG + AUFENTHALTSDAUER

Die An- und Abreisetage sowie die Mindestaufenthaltsdauer in der von Ihnen gewünschten Saisonzeit entnehmen Sie bitte dem Kalender. Hinweis: Sollten Sie aus irgendeinem Grund nicht am vorgesehenen Anreisetag anreisen können, ist selbstverständlich auch ein Check-in am Folgetag möglich (bitte vor der Anreise melden). Gleiches gilt auch falls Sie früher abreisen möchten. Auch hier ist die Abreise am Vortag möglich. Der zum Buchen vorgegebene Mietzeitraum/Mietpreis bleibt jedoch unverändert.

STRAND

Der direkt an die Ferienanlage angrenzende Kieselstrand, verfügt sowohl über einen Privat-Strand mit Liegen und Sonnenschirmen als auch über einen grossen freien Strand. Der flachabfallende Strand eignet sich besonders gut für Familien mit Kleinkindern. Den Gästen stehen viele Wassersport-Möglichkeiten zur Verfügung, wie zum Beispiel Windsurfen, Segeln, Kanu oder die Tauchschule. Auch ein „Spielplatz auf Wasser“ steht den Kindern zur Verfügung. Der ideale Ort, um sich bei einem Sonnenbad zu entspannen oder sich einer der vielen Sportaktivitäten zu widmen. Ein leckeres Essen kann im Schatten des Restaurants Pineta Mare eingenommen werden, welches ein grosszügiges Angebot führt.

POOL

Den Feriengästen stehen mehrere Pools, über die Anlage verteilt zur Verfügung. Jeder Pool für Schwimmer ist mit einem Kinderplanschbecken verbunden. Für die Kinder hat es Wasserrutschbahnen und tolle Wasserspiele. Ein Spraypark sorgt für Spiel und Spass bei den Kleinen. Zur Erholung stehen grosse Liegeflächen mit Liegen zur Verfügung.

FAMILIENFREUNDLICH

In der Hochsaison wird eine Gruppe erfahrener Animateure Ihren Aufenthalt auf eine sanfte Art beleben. Jeden Tag werden Sportturniere und Wettkämpfe organisiert, wie Fussball, Volleyball, Tennis, Boccia, und viele andere. Das Animationsteam organisiert auch Leicht Gymnastik, Pilates, Aqua-gym, Aerobic und Stretching. Für Kinder von 3-6 gibt es den Flinky Klub, für die älteren den Teen Klub (7-10) und für die Jugendlichen von 11-15 Jahre den Junior Klub. Ihre Kinder werden die Möglichkeit haben, als Protagonisten an abendlichen Vorstellungen teilzunehmen. Jeden Abend wird Ihnen, von den Animateuren im Theater eine fantastische Unterhaltung geboten. Wer sich sportlich betätigen möchte, hat eine grosse Auswahl. Fussball, Volleyball, Tennis, Bogenschiessen und Boccia sind nur einige Möglichkeiten.

FREIZEIT UND SPORT

Wer sich auch im Urlaub fit halten möchte, hat die Qual der Wahl. Es stehen Ihnen Fussball, Boccia, Bogenschiessen, Billard und Volley zur Verfügung. Zusätzlich haben Sie die Möglichkeit zum Tennisspielen. Ausserdem stellt die Animation ein abwechslungsreiches Fitnessprogramm für jeden Tag zusammen mit Leicht Gymnastik, Pilates, Aqua-gym, Aerobic und Stretching. Am Strand können Sie Windsurfen, Tauchen, Segeln oder auch Kanus mieten. Wer reiten möchte, hat ein paar Minuten vom Feriendorf entfernt, die Möglichkeit dazu. Ein Fahrradverleih steht ebenfalls zur Verfügung.

EINKAUFEN

Die Ferienanlage verfügt über mehrere Läden in denen Sie nach Herzenslust einkaufen können. Ob frische Lebensmittel, Artikel des täglichen Gebrauchs, Zeitungen, Souvenirs, Strandartikel oder Weinladen, Sie finden alles. Wenn Ihnen nach einer neuen Frisur ist, steht Ihnen auch ein Friseur zur Verfügung.

VERPFLEGUNG

Die Unterkunft verfügt über eine gut eingerichtete Küche mit Gasherd, Geschirr, Besteck, Töpfen, einer typisch italienischen Espressokanne, einer Mikrowelle sowie einem Kühlschrank mit Eisfach. Auch Einkaufsmöglichkeiten liegen in nächster Nähe. Wenn Sie sich kulinarisch verwöhnen lassen möchten, haben Sie die Möglichkeit das in einem der Restaurants zu tun. Geniessen Sie die typischen Spezialitäten aus ausgezeichnetem Fisch und Fleisch, sowie die mediterrane Küche. Falls Sie lieber von einer Halb- bzw. Vollpension Gebrauch machen möchten, können Sie diese gerne vor Ort dazu buchen (eine Voranmeldung ist nicht nötig).

HAUSTIERE

Haustiere sind erlaubt und bei der Buchung zwingend anzumelden.

SPEZIELLES

Die Kurtaxen sind bei unseren Angeboten bereits im Preis enthalten. Das Feriendorf hat einen eigenen Arzt.

ANREISE

Detaillierte Anreise-Angaben erhalten Sie zusammen mit den Reiseunterlagen nach der Buchung.

Mehr lesen

Ausstattungen

Allgemein
  • Haustiere erlaubt
  • Familienurlaub
  • Klimaanlage
  • Pool (Mitbenutzung)
Alle anzeigen
Küche
  • Kühlschrank
  • Geschirr und Besteck
  • Mikrowelle
  • Küchenzeile
  • 2-Plattenherd
Alle anzeigen
Schlafen
  • Doppelbett
  • Einzelbett
  • Bettwäsche
Alle anzeigen
Bad
  • Dusche
  • Waschbecken
  • WC
Alle anzeigen
Einrichtung
  • Sonnenliegen
  • Handtücher
  • Kinderhochstuhl
Alle anzeigen
Unterhaltung
  • TV SAT/Kabel
  • WLAN-Ausstattung
Alle anzeigen
Außenbereich
  • Spielplatz
  • Garten
  • Gartenmöbel
  • Parkplatz: privat, nahe der Unterkunft
Alle anzeigen
Umgebung
  • Lage: direkt am Wasser
Alle anzeigen
Aktivitäten
  • Fahrräder
  • Tischtennisplatte
Alle anzeigen

Lage

Ich stimme der Verarbeitung von Daten (insbesondere meiner IP-Adresse) und deren Übertragung außerhalb der EU durch OpenStreetMap zu, um die Karte anzuzeigen.
Mehr erfahren

  • Flughafen 15.00 km
  • Bahnhof 7.00 km
  • Einkaufsmöglichkeit 0.25 km
  • Restaurant 0.25 km
  • Nachtleben 0.80 km
  • Ortsmitte 0.80 km
  • Meer 0.53 km

Bewertungen

Noch sind keine Bewertungen vorhanden

FAQ's

Wie groß ist das Haus "Ferienanlage Bi Village Lodge Comfort" genau?
Das Haus "Ferienanlage Bi Village Lodge Comfort" ist 32 Quadratmeter groß.
Ab wann darf ich in das Haus "Ferienanlage Bi Village Lodge Comfort", bzw. ab wann kann ich anreisen?
Sie können in der Unterkunft "Ferienanlage Bi Village Lodge Comfort" zwischen 17:00 und 22:00 Uhr entspannt anreisen.
Gibt es an der Unterkunft "Ferienanlage Bi Village Lodge Comfort" oder in der Nähe eine Parkmöglichkeit?
Es gibt an der Unterkunft "Ferienanlage Bi Village Lodge Comfort" oder in der Nähe eine oder mehrere Parkgelegenheiten.
Wie viele Schlafzimmer sind in der Unterkunft "Ferienanlage Bi Village Lodge Comfort" vorhanden?
In der Unterkunft "Ferienanlage Bi Village Lodge Comfort" sind 3 Schlafzimmer vorhanden.
Mit wie vielen Betten ist das Haus "Ferienanlage Bi Village Lodge Comfort" ausgestattet?
Das Haus "Ferienanlage Bi Village Lodge Comfort" ist mit 6 Betten ausgestattet.

Preise  pro Nacht inkl. MwSt.

13.10.2025 - 22.04.2026
Mindestaufenthalt
1 Nächte
bis 6 Personen
0,00 €
23.04.2026 - 15.05.2026
Mindestaufenthalt
2 Nächte
bis 6 Personen
122,92 €
16.05.2026 - 12.06.2026
Mindestaufenthalt
3 Nächte
bis 6 Personen
198,96 €
13.06.2026 - 26.06.2026
Mindestaufenthalt
5 Nächte
bis 6 Personen
198,96 €
27.06.2026 - 10.07.2026
Mindestaufenthalt
5 Nächte
bis 6 Personen
345,83 €
11.07.2026 - 28.08.2026
Mindestaufenthalt
7 Nächte
bis 6 Personen
345,83 €
29.08.2026 - 11.09.2026
Mindestaufenthalt
5 Nächte
bis 6 Personen
278,13 €
12.09.2026 - 09.10.2026
Mindestaufenthalt
2 Nächte
bis 6 Personen
122,92 €
Alle anzeigen

Zu jeder Buchung werden Nebenkosten in Höhe von 64,35 € berechnet. Die Nebenkosten setzen sich wie folgt zusammen:
  • Kurtaxe p. Pers./ p. Tag: 2,08 € pro Person und pro Nacht
  • Endreinigung: 62,27 €

Belegungen

April 2026
Mo Di Mi Do Fr Sa So
  12345
6789101112
13141516171819
20212223242526
27282930   
       
Mai 2026
Mo Di Mi Do Fr Sa So
    123
45678910
11121314151617
18192021222324
25262728293031
       
Juni 2026
Mo Di Mi Do Fr Sa So
1234567
891011121314
15161718192021
22232425262728
2930     
       
Juli 2026
Mo Di Mi Do Fr Sa So
  12345
6789101112
13141516171819
20212223242526
2728293031  
       
frei
keine An-/Abreise
Anreise möglich
Abreise möglich
belegt
Auswahl
heute
nicht wählbar
Angebote
Blockierung
Option

Reservieren

Reisezeitraum wählen

Bitte wählen Sie Ihren Reisezeitraum einfach per Klick auf das Zeitraumfeld aus. Achten Sie dabei auf evtl. vorgegebene Mindestübernachtungszeiten.

Zeitraum
Erwachsene
Kinder

Optionale Zusatzleistungen

Wählen Sie nun Ihre optionalen Zusatzleistungen aus wenn gewünscht.

Preis
inkl. MwSt.
Summe
inkl. MwSt.
Haustier 17€p. Tag/a.Anfrage/b.Anreise zahlbar
pro Nacht
Preis
inkl. MwSt.
17,71 €
Summe
inkl. MwSt.
0,00 €
Babybett 10€p. Tag/a.Anfrage/b.Anreise zahlbar
pro Nacht
Preis
inkl. MwSt.
10,42 €
Summe
inkl. MwSt.
0,00 €
Hochstuhl inkl.
Preis
inkl. MwSt.
0,00 €
Summe
inkl. MwSt.
0,00 €

Ihre Kontaktdaten

Bitte tragen Sie Ihre persönlichen Kontaktdaten ein.
Bei den gekennzeichneten Felder handelt es sich um Pflichtfelder.

Sie haben weitere Fragen?

Hier können Sie dem Verwalter noch Wünsche und Anregungen mitteilen.

Bitte wählen Sie einen Reisezeitraum
Mietpreis
0,00 €
einmalige Nebenkosten
0,00 €
optionale Leistungen
0,00 €
Zuschläge
0,00 €
Kurtaxe
0,00 €
Gesamtsumme
0,00 €