Objektbeschreibung

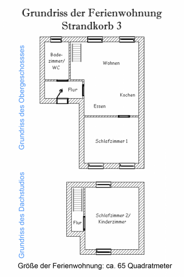
Das "Haus Strandkorb" bietet Ihnen natürlich WLAN im gesamten Haus an. Jede unserer Wohnungen ist mit einem Flachbildfernseher, einer hochwertigen Matratze und einer modernen Küche ausgestattet, die alle Elektrogeräte und einen Esstisch beinhaltet. Die Badezimmer sind ebenfalls hochwertig ausgestattet und bieten eine optimale Platzausnutzung. Einige unserer Wohnungen verfügen über eine eigene Terrasse, und eine Wohnung ist sogar mit einem Wintergarten ausgestattet. Zudem stehen unseren Gästen gemeinschaftlich genutzte Waschmaschinen und Wäschetrockner zur Verfügung. Hinter dem Haus erwartet Sie ein schöner Garten mit viel Platz für die Kinder. Ferienwohnung "Strandkorb 3" Größe: ca. 65 Quadratmeter Wohnraum mit integrierter Küche Schlafzimmer zweites separates Schlafzimmer/Kinderzimmer Badezimmer mit Dusche, Waschtisch und WC Obergeschoss optimal für 2 bis 4 Personen und zusätzlich ein Kleinkind
Mehr lesen

Ausstattungen

Allgemein
  • Familienurlaub
  • Zentralheizung
  • Nichtraucherobjekt
Alle anzeigen
Küche
  • Gefrierfach
  • Kühlschrank
  • Küche
  • Mikrowelle
  • Toaster
  • Wasserkocher
  • Geschirrspüler
  • Backofen
  • Kaffeemaschine
Alle anzeigen
Schlafen
  • Etagenbett
  • Bettwäsche
  • Schlafsofa
  • Doppelbett
Alle anzeigen
Bad
  • Dusche
Alle anzeigen
Einrichtung
  • Handtücher
  • Waschmaschine
  • Trockner
  • Staubsauger
  • Kinderhochstuhl
Alle anzeigen
Unterhaltung
  • TV SAT/Kabel
  • WLAN-Ausstattung
  • Internetanschluss
Alle anzeigen
Außenbereich
  • Parkplatz: privat, an der Unterkunft
  • Terrasse (unüberdacht)
Alle anzeigen
Umgebung
  • Lage: in Strandnähe
Alle anzeigen
Aktivitäten
  • Aktivität: Radfahren
  • Aktivität: Wandern
Alle anzeigen

Lage

Ich stimme der Verarbeitung von Daten (insbesondere meiner IP-Adresse) und deren Übertragung außerhalb der EU durch OpenStreetMap zu, um die Karte anzuzeigen.
Mehr erfahren

  • Strand 0.20 km
  • Wasser 0.20 km
  • Einkaufsmöglichkeit 0.20 km
  • Restaurant 0.20 km
  • Arzt 0.20 km
  • Ortsmitte 0.20 km
  • Autobahn 30.00 km

Bewertungen

Noch sind keine Bewertungen vorhanden

FAQ's

Bietet sich das Apartment "Haus Strandkorb FeWo Strandkob 3" auch für einen Familienurlaub an?
Das Apartment "Haus Strandkorb FeWo Strandkob 3" ist familienfreundlich und eignet sich für einen Urlaub mit bis zu 3 Kindern.
Wie viele Schlafzimmer sind in der Unterkunft "Haus Strandkorb FeWo Strandkob 3" vorhanden?
In der Unterkunft "Haus Strandkorb FeWo Strandkob 3" sind 2 Schlafzimmer vorhanden.
Mit wie vielen Betten ist das Apartment "Haus Strandkorb FeWo Strandkob 3" ausgestattet?
Das Apartment "Haus Strandkorb FeWo Strandkob 3" ist mit 4 Betten ausgestattet.
Darf ich mein Haustier mit in das Apartment "Haus Strandkorb FeWo Strandkob 3" nehmen?
In der Unterkunft "Haus Strandkorb FeWo Strandkob 3" sind Hautiere leider nicht erlaubt.
Wie viele Badezimmer hat das Apartment "Haus Strandkorb FeWo Strandkob 3"?
Das Apartment "Haus Strandkorb FeWo Strandkob 3" hat 1 Badezimmer.

Preise  pro Nacht inkl. MwSt.

07.09.2025 - 01.11.2025
Mindestaufenthalt
5 Nächte
bis 2 Personen
155,21 €
je weitere Person
20,83 €
02.11.2025 - 19.12.2025
Mindestaufenthalt
1 Nächte
bis 2 Personen
103,13 €
je weitere Person
20,83 €
20.12.2025 - 04.01.2026
Mindestaufenthalt
6 Nächte
bis 2 Personen
176,04 €
je weitere Person
20,83 €
05.01.2026 - 19.03.2026
Mindestaufenthalt
1 Nächte
bis 2 Personen
103,13 €
je weitere Person
20,83 €
20.03.2026 - 12.04.2026
Mindestaufenthalt
5 Nächte
bis 2 Personen
176,04 €
je weitere Person
20,83 €
13.04.2026 - 13.05.2026
Mindestaufenthalt
3 Nächte
bis 2 Personen
155,21 €
je weitere Person
20,83 €
14.05.2026 - 29.05.2026
Mindestaufenthalt
5 Nächte
bis 2 Personen
176,04 €
je weitere Person
20,83 €
30.05.2026 - 13.09.2026
Mindestaufenthalt
7 Nächte
bis 2 Personen
176,04 €
je weitere Person
20,83 €
14.09.2026 - 01.11.2026
Mindestaufenthalt
5 Nächte
bis 2 Personen
155,21 €
je weitere Person
20,83 €
02.11.2026 - 18.12.2026
Mindestaufenthalt
1 Nächte
bis 2 Personen
103,13 €
je weitere Person
20,83 €
19.12.2026 - 04.01.2027
Mindestaufenthalt
6 Nächte
bis 2 Personen
176,04 €
je weitere Person
20,83 €
Alle anzeigen

Zu jeder Buchung werden Nebenkosten in Höhe von 101,04 € berechnet. Die Nebenkosten setzen sich wie folgt zusammen:
  • Endreinigung: 88,54 €
  • Servicepauschale: 12,50 €

Belegungen

Oktober 2025
Mo Di Mi Do Fr Sa So
  12345
6789101112
13141516171819
20212223242526
2728293031  
       
November 2025
Mo Di Mi Do Fr Sa So
     12
3456789
10111213141516
17181920212223
24252627282930
       
Dezember 2025
Mo Di Mi Do Fr Sa So
1234567
891011121314
15161718192021
22232425262728
293031    
       
Januar 2026
Mo Di Mi Do Fr Sa So
   1234
567891011
12131415161718
19202122232425
262728293031 
       
frei
keine An-/Abreise
Anreise möglich
Abreise möglich
belegt
Auswahl
heute
nicht wählbar
Angebote
Blockierung
Option

Reservieren

Reisezeitraum wählen

Bitte wählen Sie Ihren Reisezeitraum einfach per Klick auf das Zeitraumfeld aus. Achten Sie dabei auf evtl. vorgegebene Mindestübernachtungszeiten.

Zeitraum
Erwachsene
Kinder

Ihre Kontaktdaten

Bitte tragen Sie Ihre persönlichen Kontaktdaten ein.
Bei den gekennzeichneten Felder handelt es sich um Pflichtfelder.

Sie haben weitere Fragen?

Hier können Sie dem Verwalter noch Wünsche und Anregungen mitteilen.

Bitte wählen Sie einen Reisezeitraum
Mietpreis
0,00 €
einmalige Nebenkosten
0,00 €
optionale Leistungen
0,00 €
Zuschläge
0,00 €
Kurtaxe
0,00 €
Gesamtsumme
0,00 €